За продажба

Свободни имота
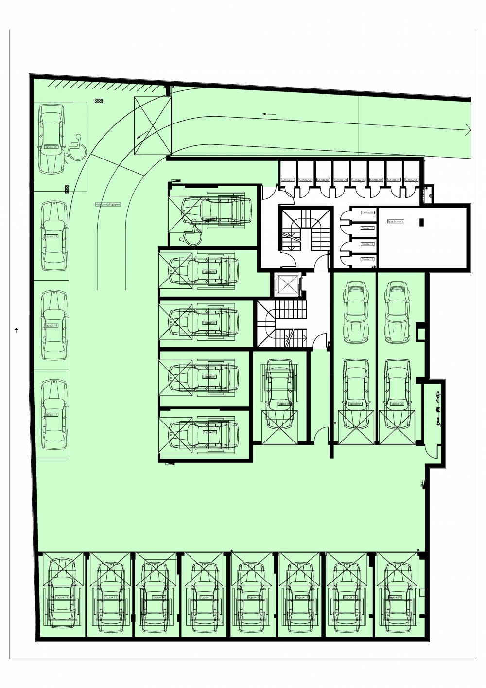
Подземен паркинг Осми етаж

Жилищна сграда "Александрит", гр.София, бул. „Черни връх"

Предстоящо издаване на сградата с Разрешение за ползване

Изтегли чертежи
Виж на картата
 
Избери етаж
Кота
Подземен паркинг

-3,30

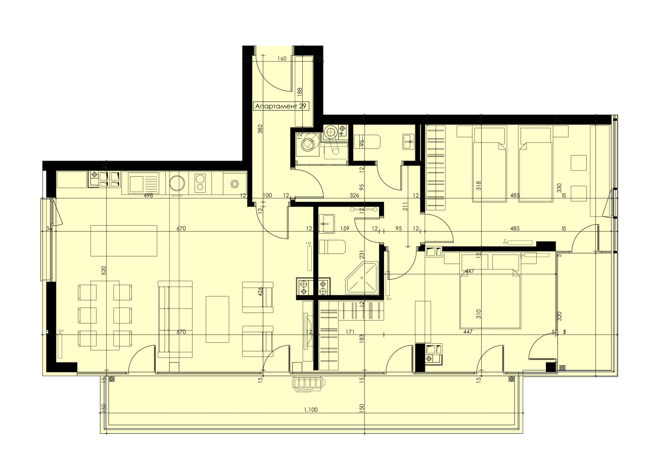
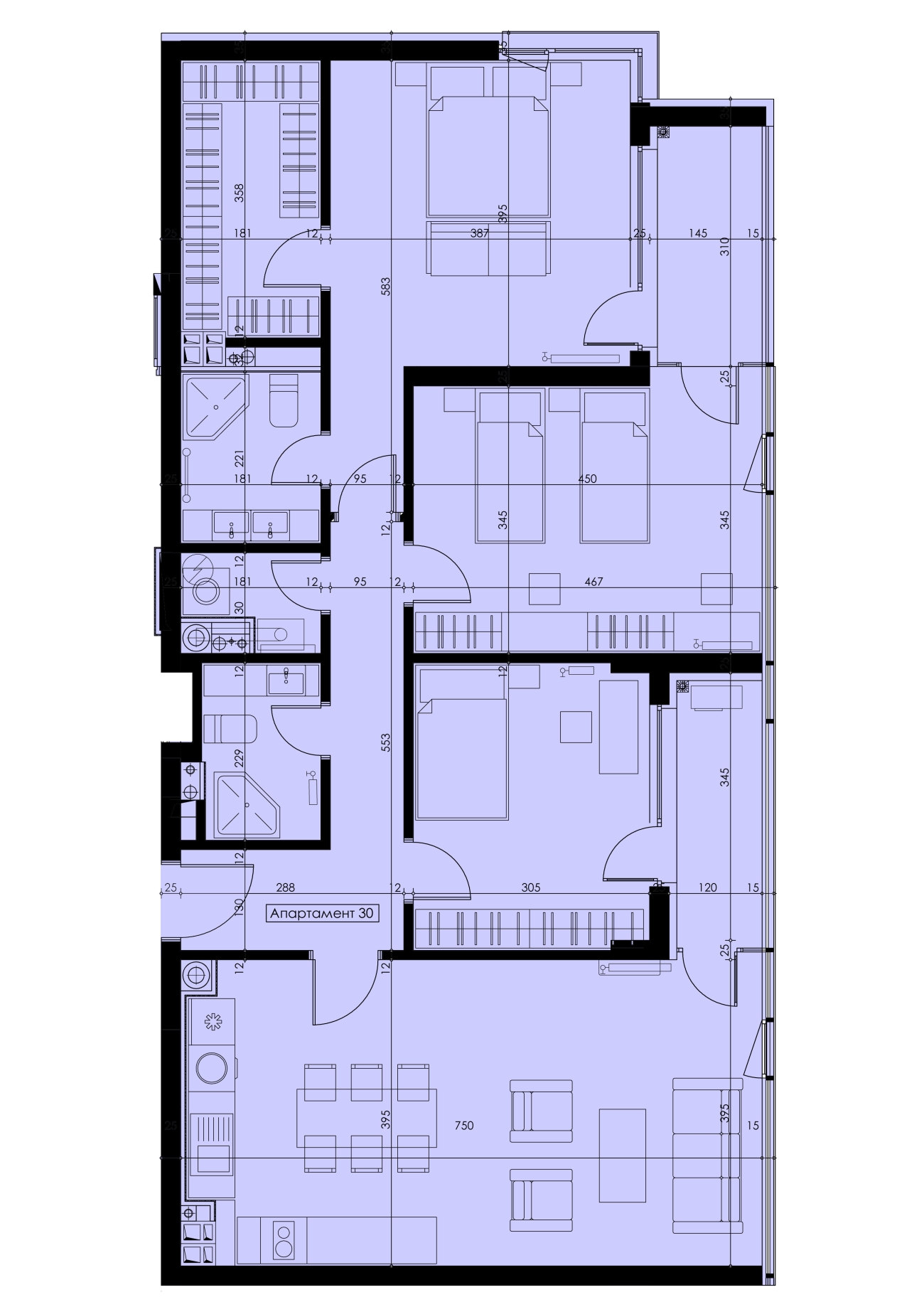
Осми етаж

+21,50

Имот
Подземен паркинг
Общ изглед на етажа
Общ изглед на етажа
Ориентация